De Panne

Vlaanderenlaan 16

In het hart van De Panne, op wandelafstand van zee, winkels en gezellige restaurants, verrijst Residentie Aurélie: een kleinschalig en stijlvol nieuwbouwproject met twee exclusieve duplexappartementen.

Dit project combineert een energiezuinig ontwerp met duurzame technieken en kwalitatieve materialen. Elk appartement beschikt over verschillende ruime terrassen.

Mogelijkheid tot aankoop aan verlaagd BTW-tarief van 6% wegens sloop en heropbouw.

Indeling

  • 2-slaapkamerappartementen

Lastenboek

Dit algemeen lastenboek bestaat uit een beschrijving van de te gebruiken materialen en de wijze waarop ze worden verwerkt.

Klik hier

Wettelijke informatie

• Vergunning aanwezig
• Woongebied
• Geen rechterlijke maatregel of bestuurlijke maatregel opgelegd
• Geen voorkooprecht
• Perceelscore A
• Verkavelingsvergunning n.v.t.

Fietsparkeerplaatsen en bergingen

  • 2 fietsparkeerplaatsen inbegrepen per appartement.

  • Berging optioneel aan te kopen.

  • Makkelijk bereikbaar op het gelijkvloers.

Btw-tarief

Het verlaagde tarief van 6% btw kan van toepassing zijn als aan de voorwaarden is voldaan.

Energie

  • Vloerverwarming

  • Warmtepomp

  • Zonnepanelen

  • E-peil max. 30

Contacteer ons

Klik op de afbeeldingen om ze te vergroten

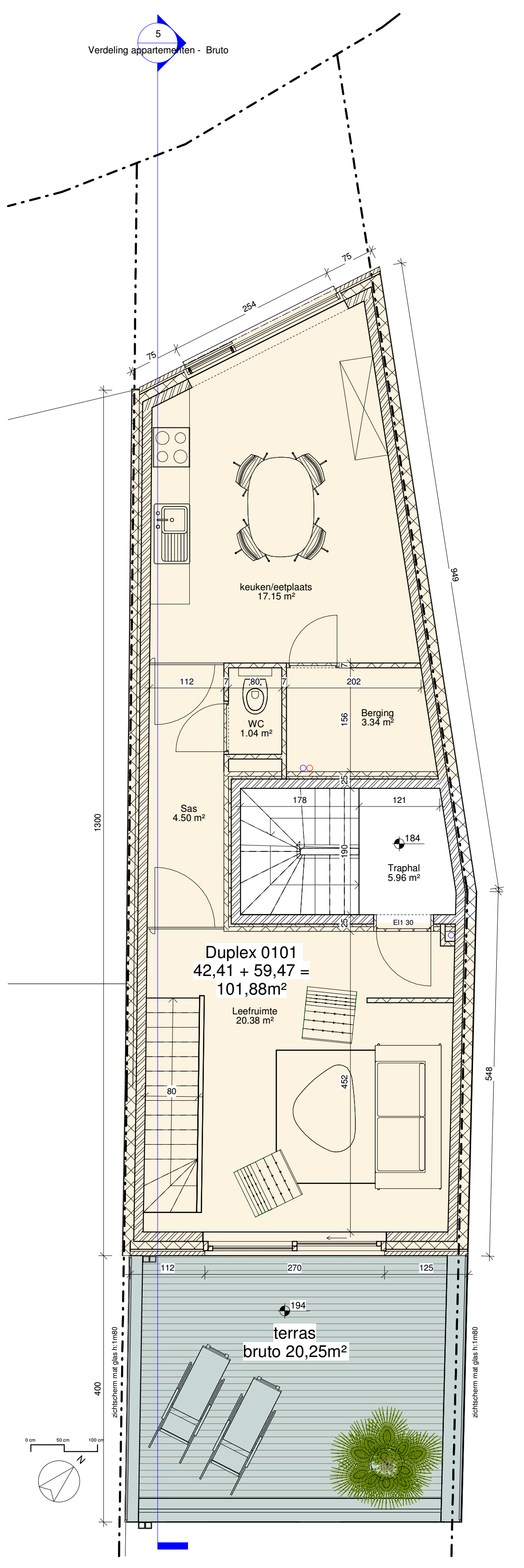
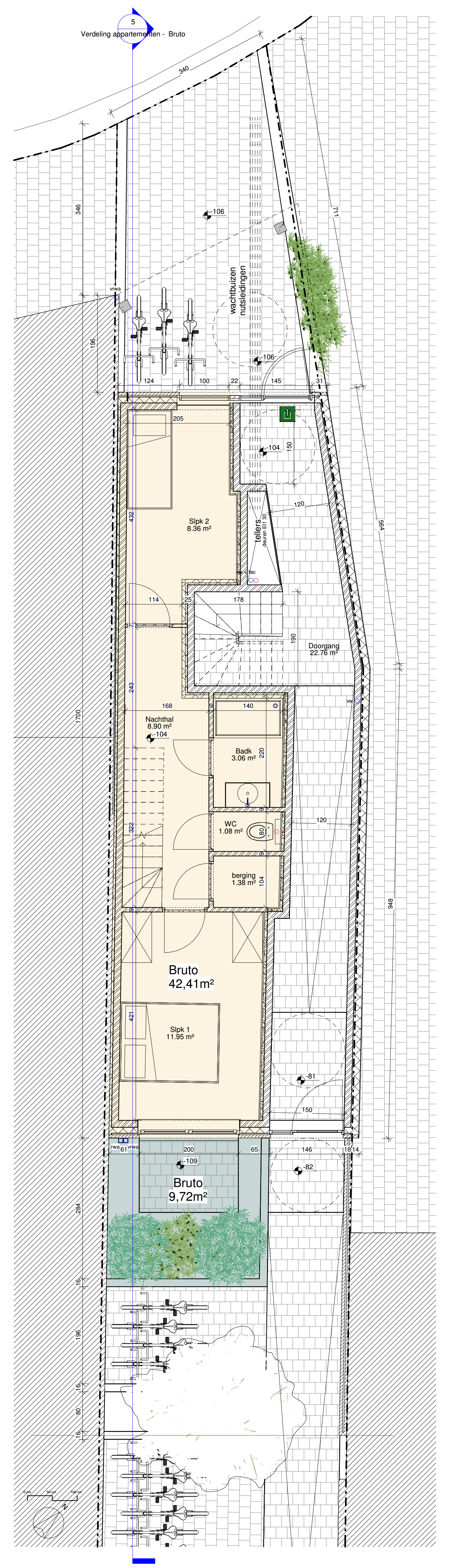
Duplex 01.01

  • Op het gelijkvloers

  • 2 slaapkamers

  • Bruto woonopp. +/- 102 m²

  • 310 000 euro (excl. btw en notariskosten)

Klik op de afbeeldingen om ze te vergroten

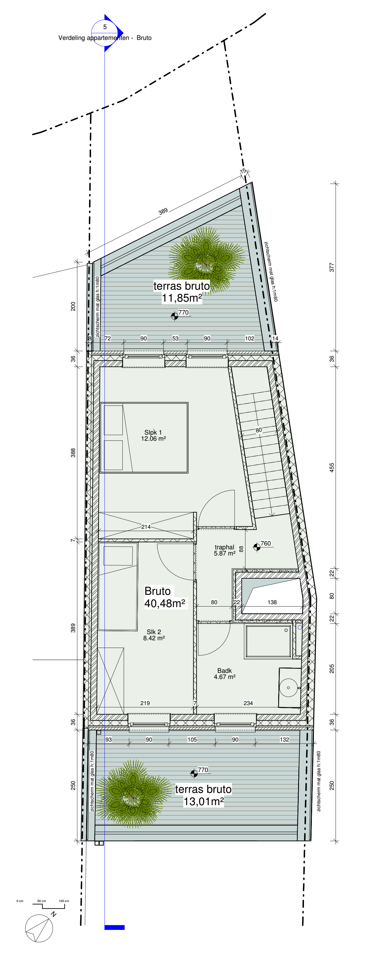
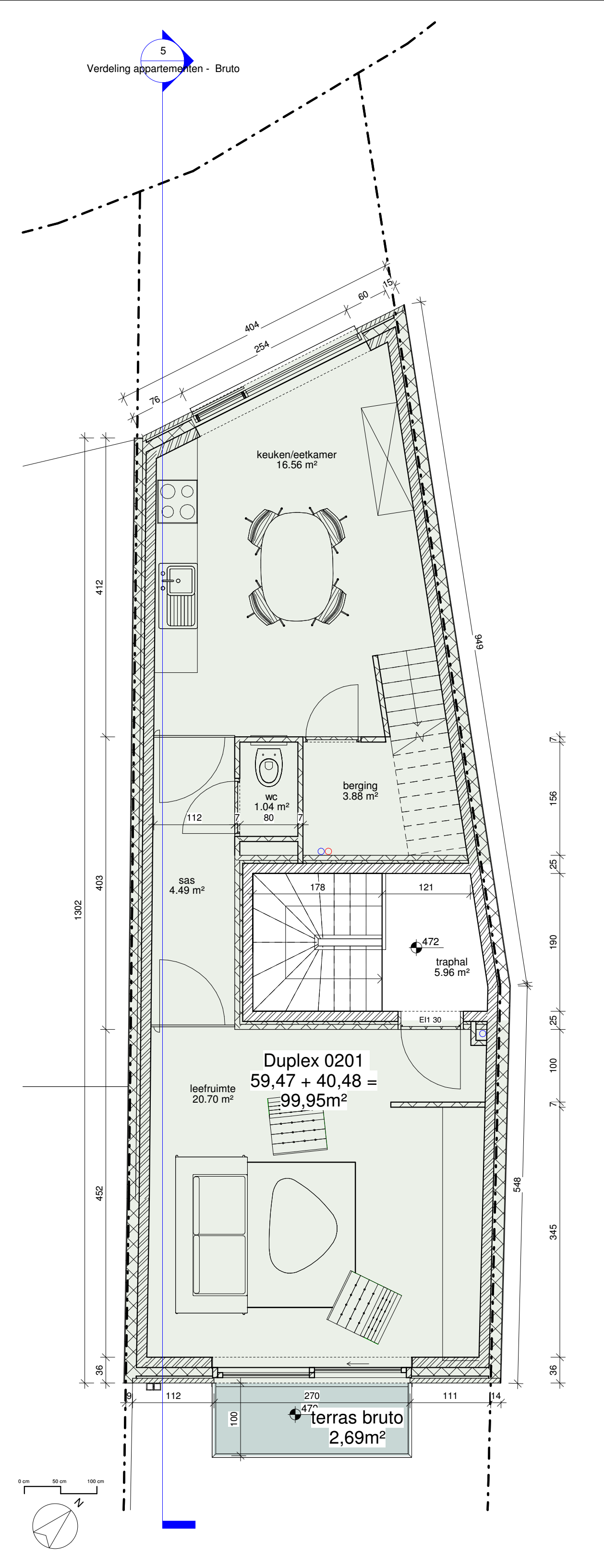
Duplex 02.01

  • Op de tweede verdieping

  • 2 slaapkamers

  • Bruto woonopp. +/- 100 m²

  • 325 000 euro (excl. btw en notariskosten)

Ligging

 

Vlaanderenlaan 16, 8660 De Panne

 

Interesse?

Neem nu contact op

0475/86 83 56
info@loemanwoningbouw.be