Sint-Niklaas

Passtraat 154

Ontdek dit kleinschalige nieuwbouwproject van vier op te richten moderne woningen, waarvan de helft reeds verkocht.

Deze energiezuinige gezinswoningen met landelijk uitzicht aan de rand van Sint-Niklaas combineren rust, ruimte en een vlotte bereikbaarheid.

Deze woningen biedt het ideale kader voor wie comfortabel en toekomstgericht wil wonen. Dankzij de flexibele indeling en de optie tot verdere afwerking op maat, maakt u hier écht uw thuis van.

Types

  • 3 gesloten bebouwingen

  • 1 halfopen bebouwing

Indeling

  • Gelijkvloers: inkomhal, open ingerichte keuken, ruime living met toegang naar terras en tuin

  • Eerste verdieping: drie slaapkamers, linnenkamer en badkamer

  • Zolderverdieping: optioneel volledig verder af te werken naar eigen keuze (extra slaapkamers, bureel...)

  • Mogelijkheid tot plaatsen van een grote berging in de tuin

Lastenboek

Dit lastenboek bestaat uit een beschrijving van de te gebruiken materialen en de wijze waarop ze worden verwerkt.

Mogelijkheid tot aankoop enkel ruwbouw winddicht.

Lastenboek ruwbouw winddicht

Lastenboek afwerking

Wettelijke informatie

  • Vergunning aan te vragen

  • Verkavelingsvergunning aanwezig

  • Woongebied

  • Geen rechterlijke maatregel of bestuurlijke maatregel opgelegd

  • Geen voorkooprecht

  • Perceelscore A: geen overstroming gemodelleerd

Parking en berging

  • Mogelijkheid tot plaatsen van een carport (niet verplicht)

  • Mogelijkheid tot plaatsen van een grote berging (niet verplicht)

  • Beide te bereiken met een achterliggende oprit via een toegang rechts

Energie

  • Vloerverwarming

  • Warmtepomp

  • Zonnepanelen

  • E-peil max. 30

Contacteer ons

Lot 1

Gesloten bebouwing

Verkocht

Lot 2

Gesloten bebouwing

Verkocht

Gelijkvloers

Eerste verdieping

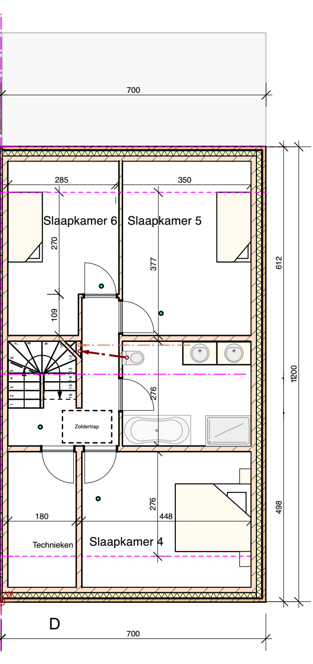
Zolderverdieping

Grondplan

Klik op de afbeeldingen om ze te vergroten

Lot 3

Gesloten bebouwing

Grondoppervlakte ca. 280 m²

440 000 euro voor de volledig afgewerkte woning, waarvan 200 000 euro excl. registratie (12%) en 240 000 euro excl. btw (21%)

Gelijkvloers

Eerste verdieping

Zolderverdieping

Grondplan

Klik op de afbeeldingen om ze te vergroten

Lot 4

Halfopen bebouwing

Grondoppervlakte ca. 387 m²

490 000 euro voor de volledig afgewerkte woning, waarvan 250 000 euro excl. registratie (12%) en 240 000 euro excl. btw (21%)

Ligging

 

Passtraat 154, 9100 Sint-Niklaas

 

Interesse?

Neem nu contact op

0475/86 83 56
info@loemanwoningbouw.be